Wimberger Schremmer
bauten
projekte
büro
werkliste
kontakt
❮
❯
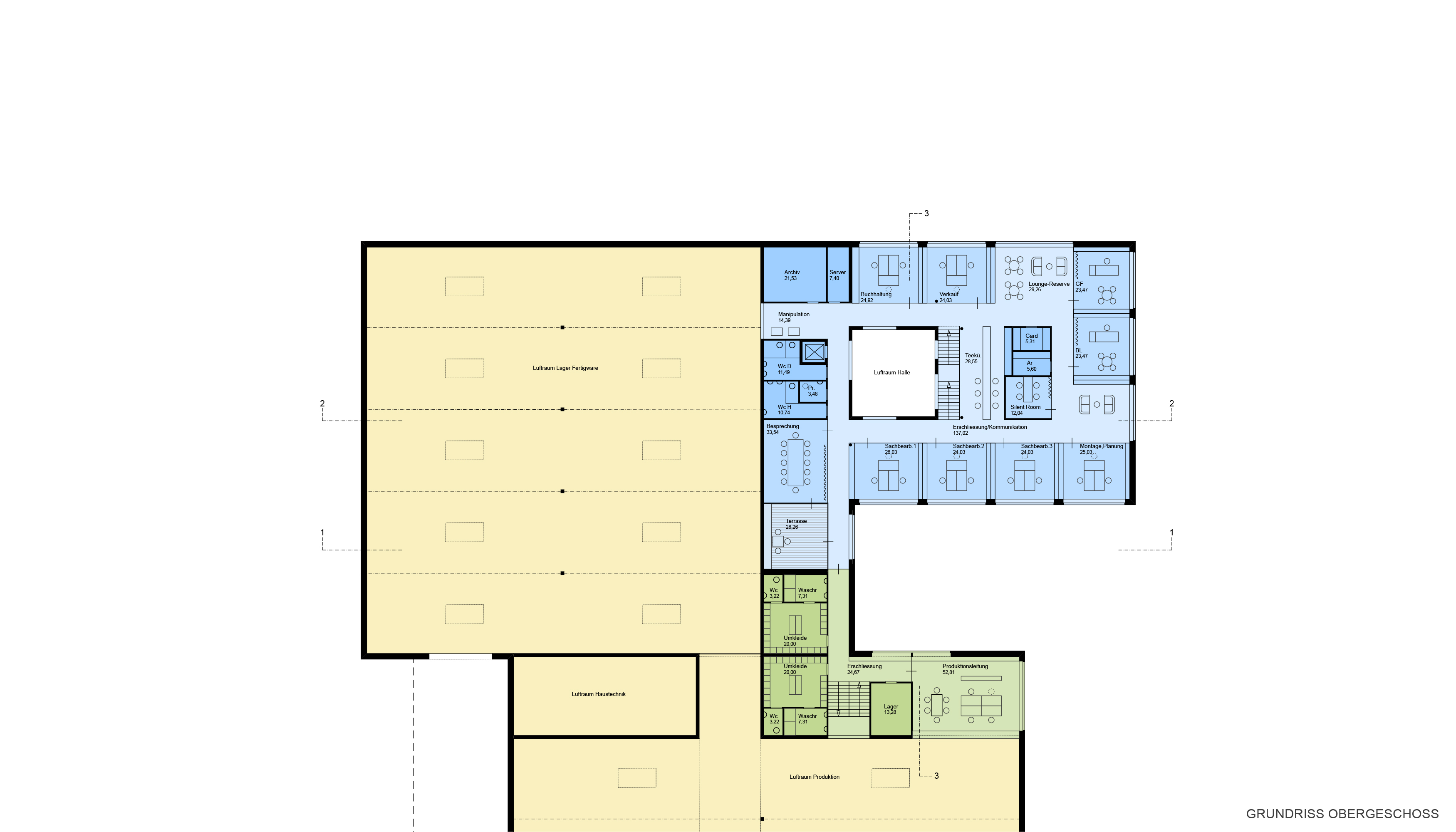
WETTBEWERB FIRMENGEBÄUDE REKORD FENSTER, 2021
mit Gösta Nowak
Ort
Lasberg
Preise
2. Preis